N8804 – villa en Orihuela Costa
- 650,000€
Description
VILLA MEDITERRANEA CERCA DEL MAR
Estupenda villa de diseño moderno situada en La Ciñuelica (Orihuela Costa), a tan solo 900 m del mar y con fácil acceso a todos los servicios andando (restaurantes, supermercados, parada de bus, farmacia).
Con la ciudad de Torrevieja, el hospital de Torrevieja y el centro comercial Zenia Boulevard a tan solo 3 km de distancia, y con los campos de golf de Orihuela Costa a una corta distancia en coche, hacen de esta situación un lugar ideal para establecer el centro de tus vacaciones o para vivir todo el año.
Disfruta de 300 días de sol al año con una temperatura media anual de 20ºC.
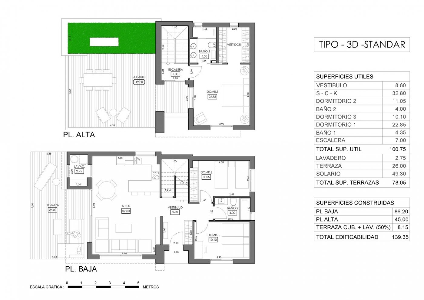
Details
Property ID N8804
3
Bedrooms
2
Bathrooms
Property Size 139 310
Year Built 1
Updated on diciembre 17, 2025 at 12:04 am
Address
-
Address: Orihuela Costa. Alicante.La Ciñuelica
-
City: Orihuela Costa
-
State/county: Alicante
-
Area: Orihuela Costa
Energy Class
-
Energetic class: B
-
Global Energy Performance Index: B
-
Energy performance of the building: B
-
EPC Current Rating: B
- A+
- A
- B | Energy class BB
- C
- D
- E
- F
- G
- H
Contact Information
Similar Listings
N3672 – villa en Orihuela Costa
- 1,160,000€
N3719 – villa en Torrevieja
- 750,000€
- Crypto Property








