SP1164 – penthouse en Villajoyosa
- 686,000€
Description
Apartamentos y áticos exclusivos frente al mar en Villajoyosa con vistas panorámicas al Mediterráneo
Descubra esta excepcional nueva promoción residencial situada en lo alto de una colina en la codiciada zona de Tellerola, en Villajoyosa. Con impresionantes vistas al mar, acceso directo a la playa a través de un sendero natural y rodeada de paisajes mediterráneos vírgenes, es la combinación perfecta de tranquilidad, comodidad y vida moderna.
Ubicación privilegiada en Villajoyosa
Situada entre la Playa del Torres y la Playa El Tío Roig, esta comunidad cerrada disfruta de una ubicación inmejorable frente al mar, pero cerca de los servicios esenciales y las actividades de ocio. El pintoresco casco antiguo de Villajoyosa está a solo 1,5 km, Benidorm, con su animada vida nocturna y sus tiendas, a 10 km, y el aeropuerto de Alicante, a solo 40 km. Esta ubicación ideal permite un fácil acceso a campos de golf, puertos deportivos y atracciones culturales a lo largo de la Costa Blanca.
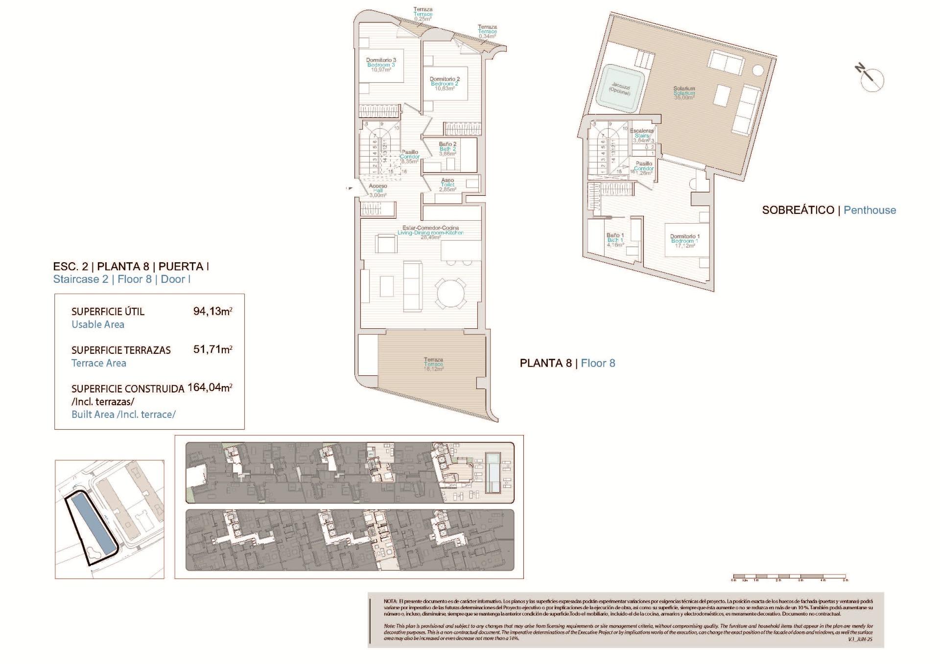
Elegantes viviendas con terrazas orientadas al mar
El complejo ofrece apartamentos y áticos de 1, 2 y 3 dormitorios, todos ellos diseñados para maximizar la luz natural y las espectaculares vistas al mar. Las amplias terrazas permiten disfrutar del clima mediterráneo durante todo el año, mientras que los acabados de primera calidad garantizan tanto el estilo como el confort.
Las características principales incluyen:
Ventanas de aluminio con rotura de puente térmico y doble acristalamiento.
Puerta de entrada blindada.
Baños con espejos, mamparas de ducha y calefacción eléctrica por suelo radiante.
Cocinas totalmente equipadas con electrodomésticos.
Aire acondicionado por conductos en toda la vivienda.
Agua caliente sanitaria mediante sistema aerotérmico.
Plaza de aparcamiento y trastero incluidos.
Servicios comunitarios de primera calidad
Los residentes disfrutarán de amplios jardines, una gran piscina comunitaria, un gimnasio totalmente equipado y un relajante spa. Lo más destacado es el exclusivo club social en la azotea con piscina infinita, que ofrece unas vistas panorámicas inigualables del Mediterráneo. El complejo combina privacidad, seguridad y un diseño moderno para crear un entorno sereno y sofisticado.
Villajoyosa: la joya escondida de la Costa Blanca
Recientemente galardonada como «Mejor destino escondido de Europa 2024» por European Best Destinations, Villajoyosa es famosa por sus coloridas casas frente al mar, su encantador casco antiguo y sus playas vírgenes. Aquí podrá sumergirse en la auténtica vida mediterránea sin renunciar a las comodidades de una ciudad cosmopolita.
Distancias a los principales puntos de interés:
Centro de Villajoyosa: 1,5 km
Benidorm: 10 km
Aeropuerto de Alicante: 40 km
Playa del Torres: 0,2 km
Playa El Tío Roig: 0,4 km
Villaitana Golf: 12 km
Puerto de Alicante: 35 km
La casa de sus sueños junto al mar le espera en Villajoyosa. Póngase en contacto con nosotros hoy mismo para concertar una visita y asegurarse su lugar en esta exclusiva comunidad frente al mar.
Details
Address
-
Address: Villajoyosa. Alicante.La Tellerola
-
City: Villajoyosa
-
State/county: Alicante
-
Area: Villajoyosa
Energy Class
-
Energetic class: B
-
Global Energy Performance Index: B
-
Energy performance of the building: B
-
EPC Current Rating: B
- A+
- A
- B | Energy class BB
- C
- D
- E
- F
- G
- H
Contact Information
Similar Listings
N5881 – penthouse en Aguilas
- 579,000€
N6459 – penthouse en Calpe
- 1,650,000€
N6581 – penthouse en Calpe
- 899,000€
- Crypto Property









