SP1357 – town house en Mojacar
- 575,000€
Description
Exclusivas viviendas de nueva construcción frente al mar en venta en Mojácar, Costa de Almería
Vida boutique frente al mar en una de las zonas más deseadas de Mojácar
Descubra una excepcional urbanización boutique compuesta por solo 10 viviendas exclusivas situadas en primera línea de playa en la zona de La Mena, en Mojácar. Esta ubicación privilegiada ofrece acceso directo a través del Paseo del Mediterráneo a las doradas arenas y las cristalinas aguas del mar Mediterráneo. Rodeada de clubes de playa, restaurantes y un tranquilo ambiente costero, esta zona es ideal para aquellos que buscan un estilo de vida refinado junto al mar. Mojácar Playa y el Parador de Mojácar están a solo 3 km, lo que ofrece una amplia gama de servicios, entretenimiento y belleza natural.
Viviendas elegantes diseñadas para el confort y las vistas al mar
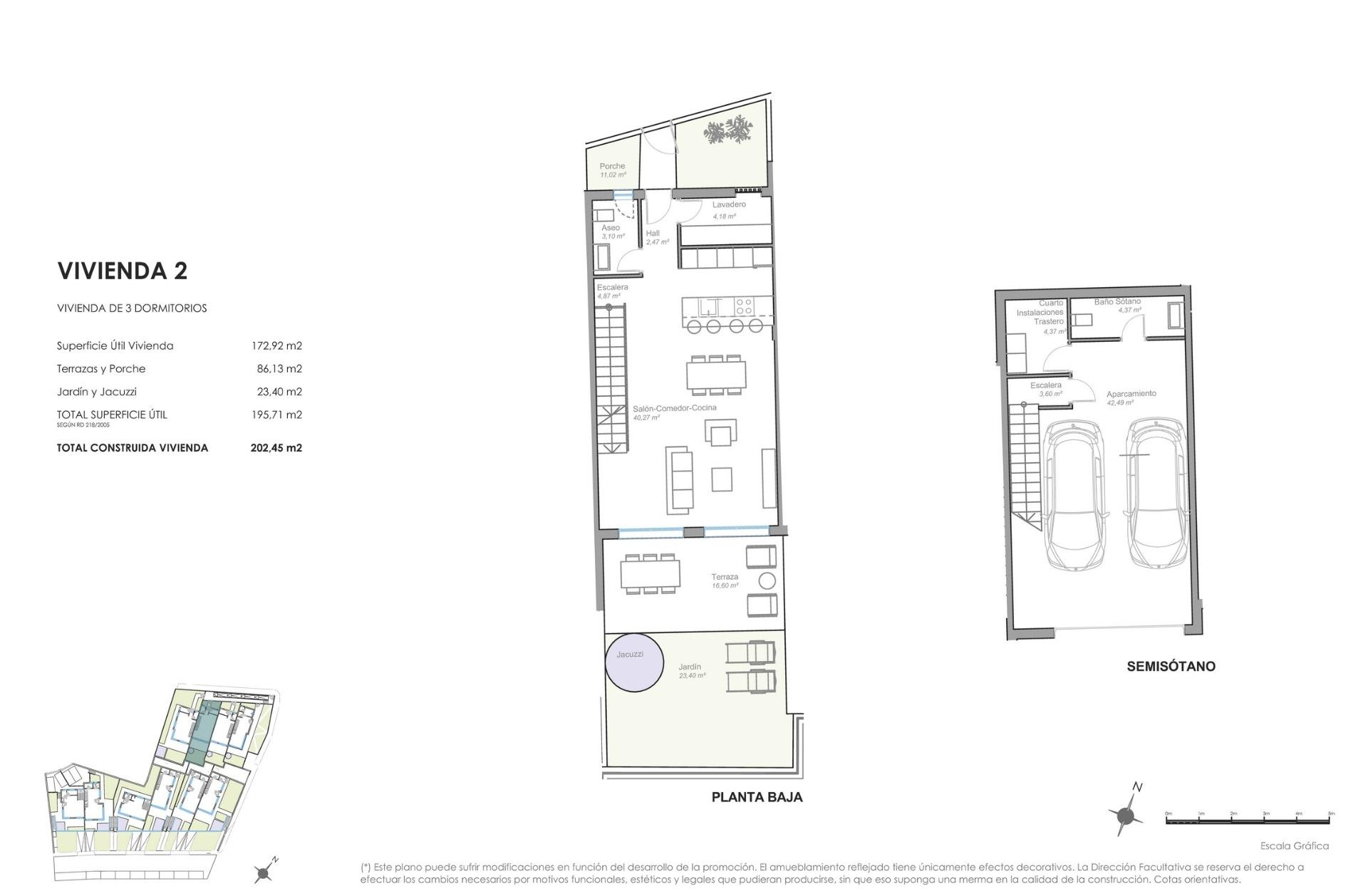
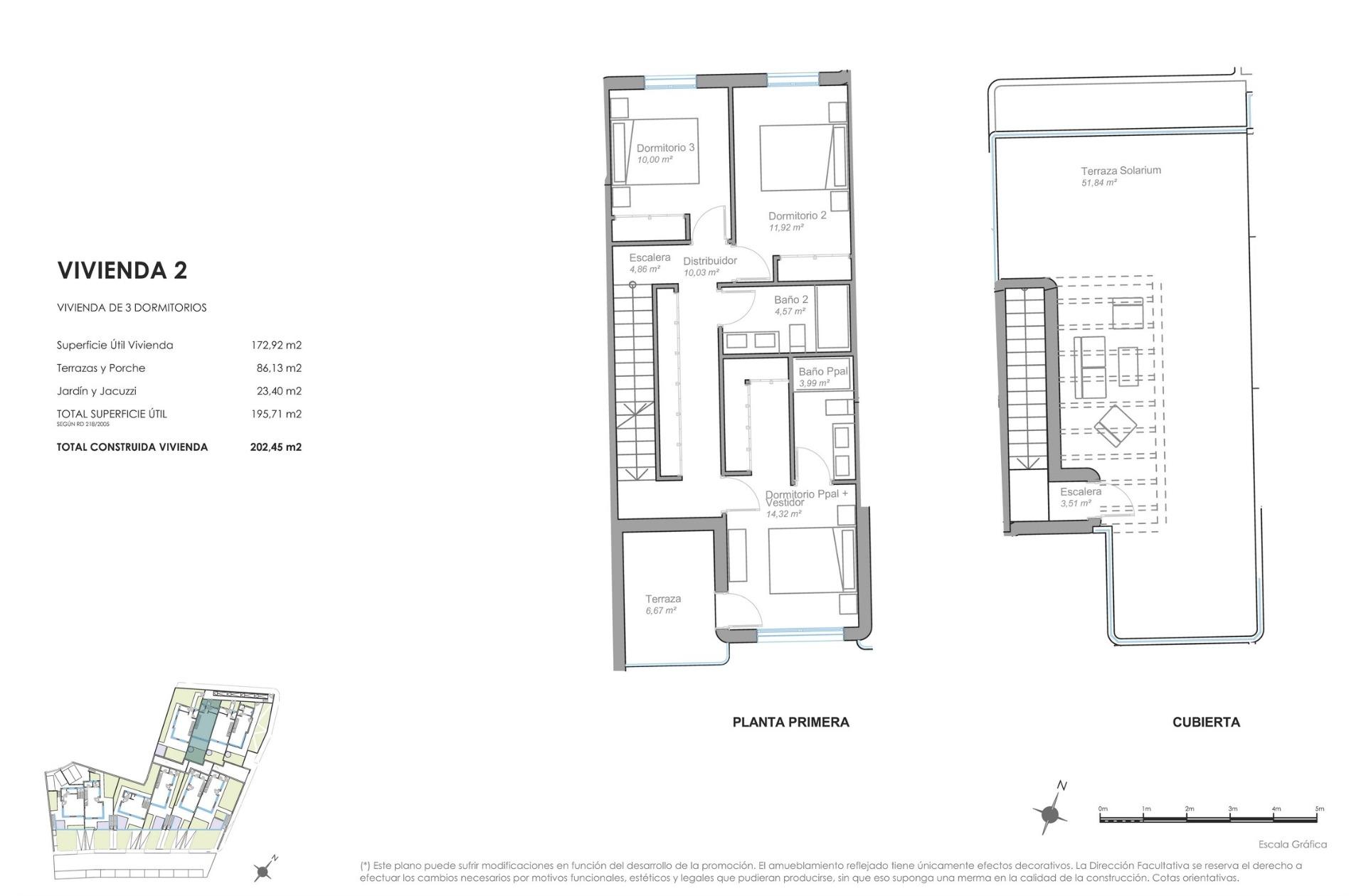
Esta exclusiva promoción ofrece propiedades de tres dormitorios y tres baños disponibles en dos configuraciones. Los compradores pueden elegir entre cuatro adosados con solárium privado y jacuzzi opcional, o seis villas pareadas, cada una con su propia piscina privada. Todas las viviendas incluyen un amplio garaje subterráneo para dos coches con un aseo, amplias terrazas y generosas zonas ajardinadas que maximizan el disfrute del aire libre y las vistas al mar.
Especificaciones de alta calidad y opciones de personalización
Cada propiedad está equipada con un sistema de aire acondicionado aerotérmico totalmente instalado, lo que garantiza la máxima eficiencia energética y comodidad durante todo el año. Las cocinas no están amuebladas, lo que permite a los propietarios personalizar su diseño, con un proyecto de decoración completo incluido. Otras características adicionales son la preinstalación para tecnología domótica, puerta de entrada reforzada y materiales de construcción de alta calidad que mejoran la seguridad, el diseño y la durabilidad.
Ubicación privilegiada con excelente conectividad
Situada en un tranquilo entorno frente al mar, la urbanización goza de un cómodo acceso a los principales destinos de la Costa de Almería. Mojácar Pueblo, con sus pintorescas calles encaladas, se encuentra a poca distancia en coche. Entre los puntos de interés más populares se incluyen:
Mojácar Playa 3 km
Parador de Mojácar 3 km
Marina de Garrucha 12 km
Campo de golf Marina Golf a 6 km
Aeropuerto de Almería a 80 km
Aeropuerto de Murcia Corvera a 150 km
Asegúrese su vivienda en primera línea de playa en Mojácar
Disfrute de un estilo de vida en el que el mar forma parte de su rutina diaria y el lujo se combina con la serenidad de la costa. Tanto si busca un refugio para sus vacaciones, una residencia permanente o una inversión exclusiva, este complejo boutique frente al mar ofrece un valor inigualable. Póngase en contacto con nosotros hoy mismo para recibir más información o concertar una visita.
Details
Features
Address
-
Address: Mojacar. Almería.Playa de la Mena
-
City: Mojacar
-
State/county: Almería
-
Area: Mojacar
Energy Class
-
Energetic class: B
-
Global Energy Performance Index: B
-
Energy performance of the building: B
-
EPC Current Rating: B
- A+
- A
- B | Energy class BB
- C
- D
- E
- F
- G
- H
Contact Information
Similar Listings
N8233 – town house en Rojales
- 365,900€
N8389 – town house en la Nucia
- 439,000€
- Crypto Property












